VILLETTE E PALAZZINE IN VIA SPAGNOLA A MIRANDOLA
Nuovo intervento residenziale a Mirandola che prevede la costruzione di villette a schiera e palazzine da 6/8 unità abitative.
Appartamenti di prossima costruzione disponibili in varie metrature con ampi terrazzi.
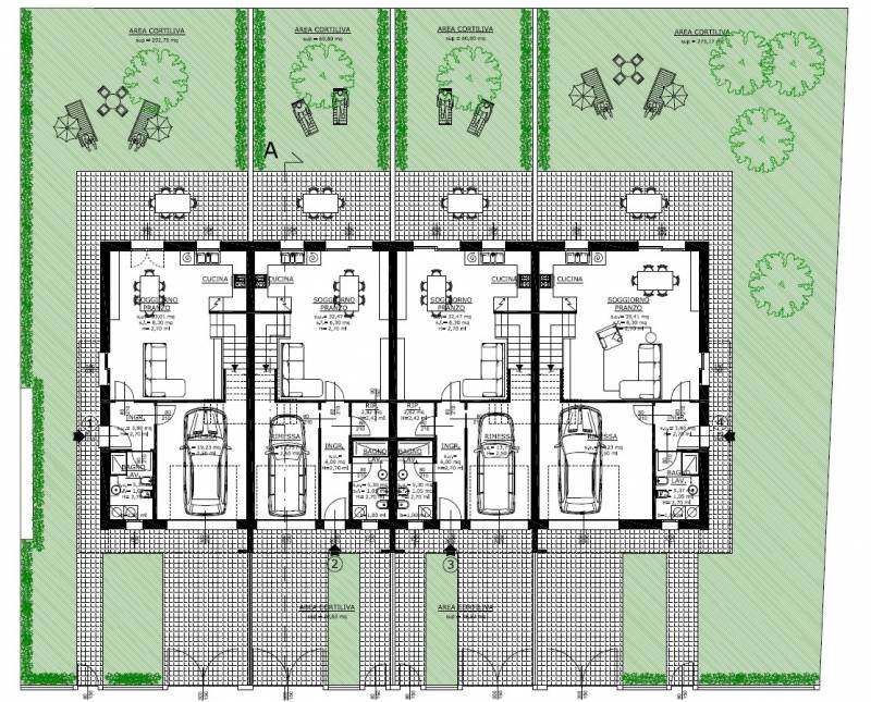
VILLETTE - PALAZZINE
Villette a schiera di varie metrature disposte su due piani: ampie zone giorno con affaccio sul giardino privato,doppi servizi, tre camere da letto e garage.
Impianto fotovoltaico e sistema di accumulo, riscaldamento a pavimento, avvolgibili motorizzati e videocitofono, sezionali automatizzati.
Finiture interne a scelta tra un capitolato di pregio.
Ampie possibilità di personalizzazione.
VISIONA BROCHURE
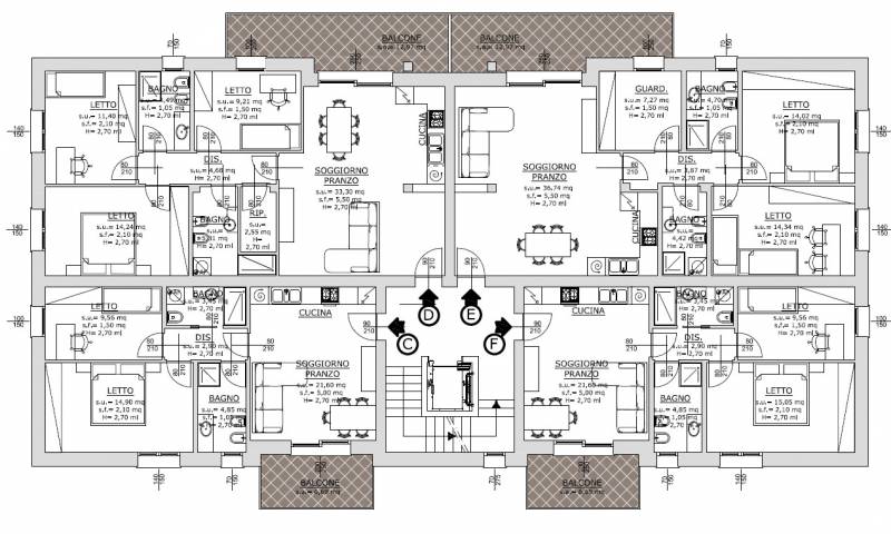
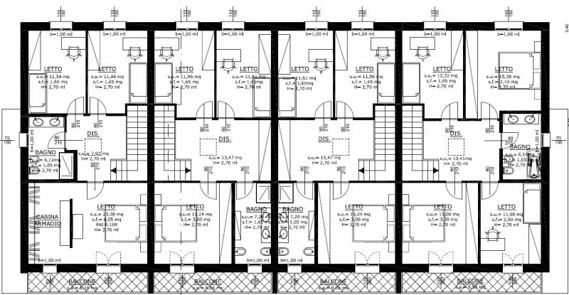
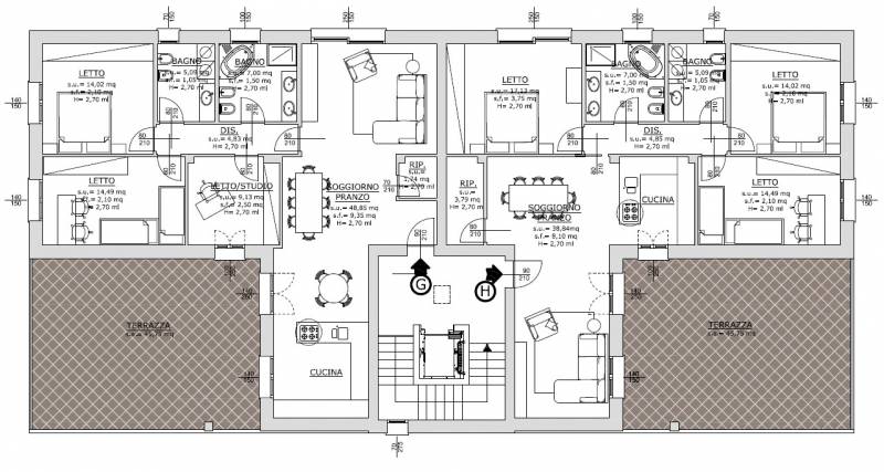
Palazzina di sole 6 unità:
- maisonette con giardino privato su tre lati;
- attici con 3 camere da letto e doppi servizi, zone giorno con ampie finestrature e affaccio sul terrazzo in parte loggiato;
- appartamenti di varie metrature con balcone.
Completano l'abitazione un garage privato e posto auto esclusivo. Ascensore a basso impatto energetico e spese di manutenzione ridotte.
Impianto fotovoltaico e sistema di accumulo a servizio di ogni unità abitativa, riscaldamento a pavimento, avvolgibili con movimentazione elettrica e videocitofono, sezionali automatizzati. Finiture interne a scelta tra un capitolato di pregio.
Ampie possibilità di personalizzazione. Predisposizione per gestione domotica e sistema antintrusione.
Contattaci per maggiori informazioni e prezzi!
